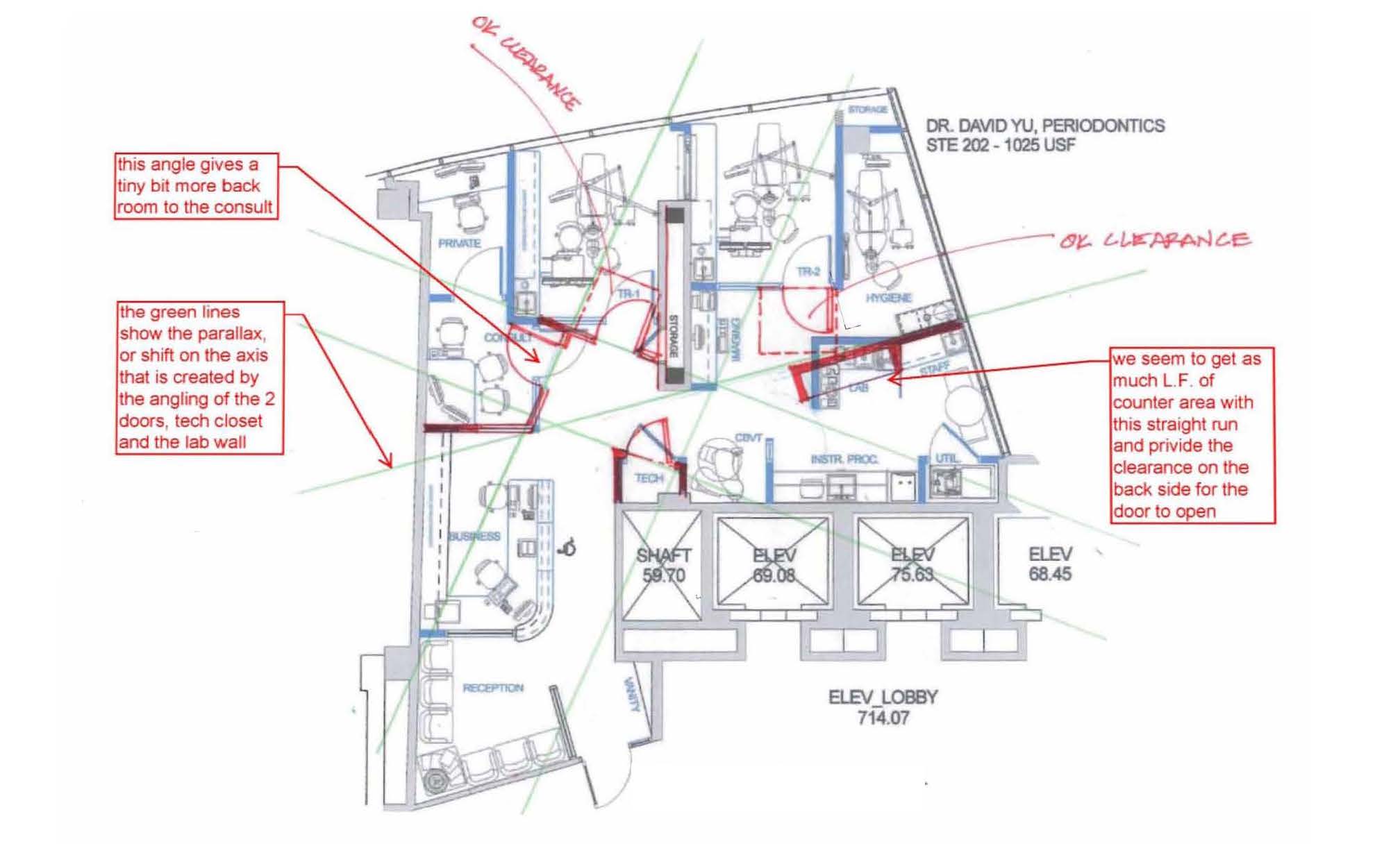
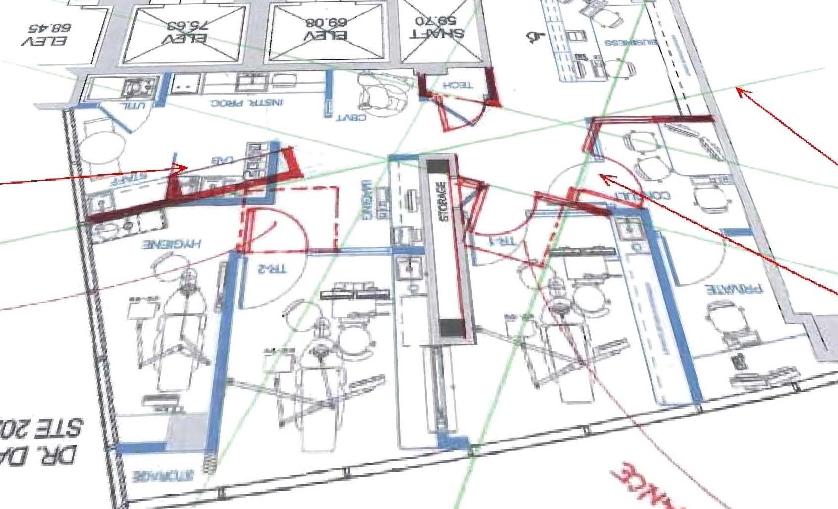
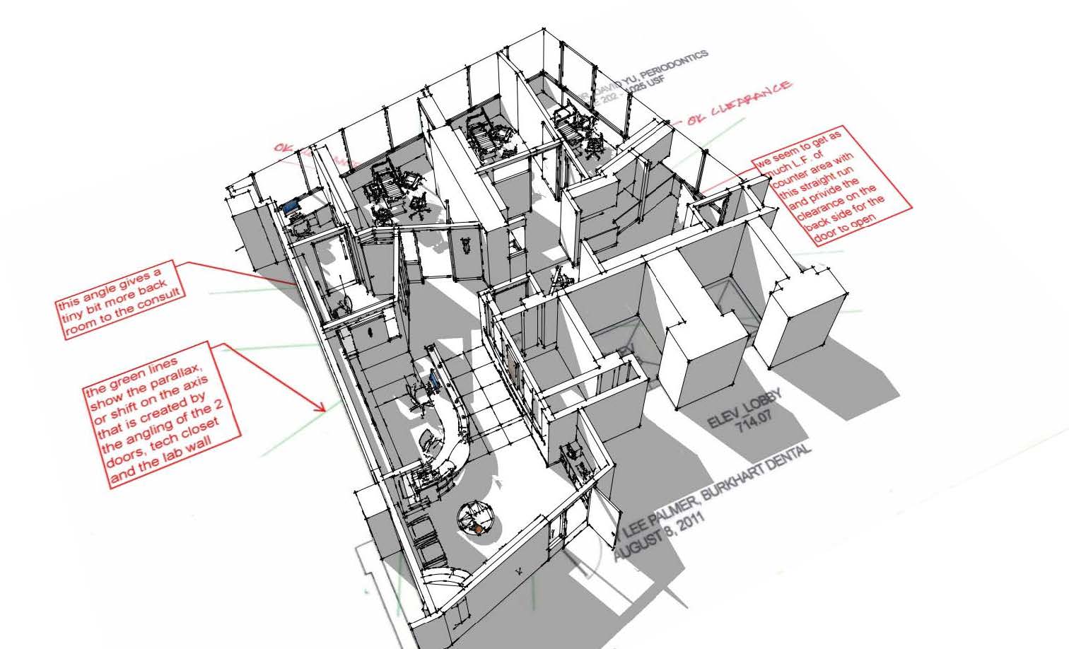
VIRTUAL LIGHT AND SHADOW STUDY FOR MD FLEX SPACE
The work environment for medical and healthcare office space for staff and especially MD associates is usually the reality of a small closet. Flextime workstations will always equate to wherever you can set the laptop with a good WIFI signal. This Flextime work area has been designed to use natural light with a window line of 10′ in an impossible corner with some landscape as a view. This makes a great space for end of day patient exam transcription, charts and communication.
THE WORK ENVIRONMENT FOR MEDICAL AND HEALTHCARE OFFICE SPACE WHERE THE FLOOR AREA IS MD. ASSOCIATES IS USUALLY THE REALITY OF SMALL CONFINED AREA




































